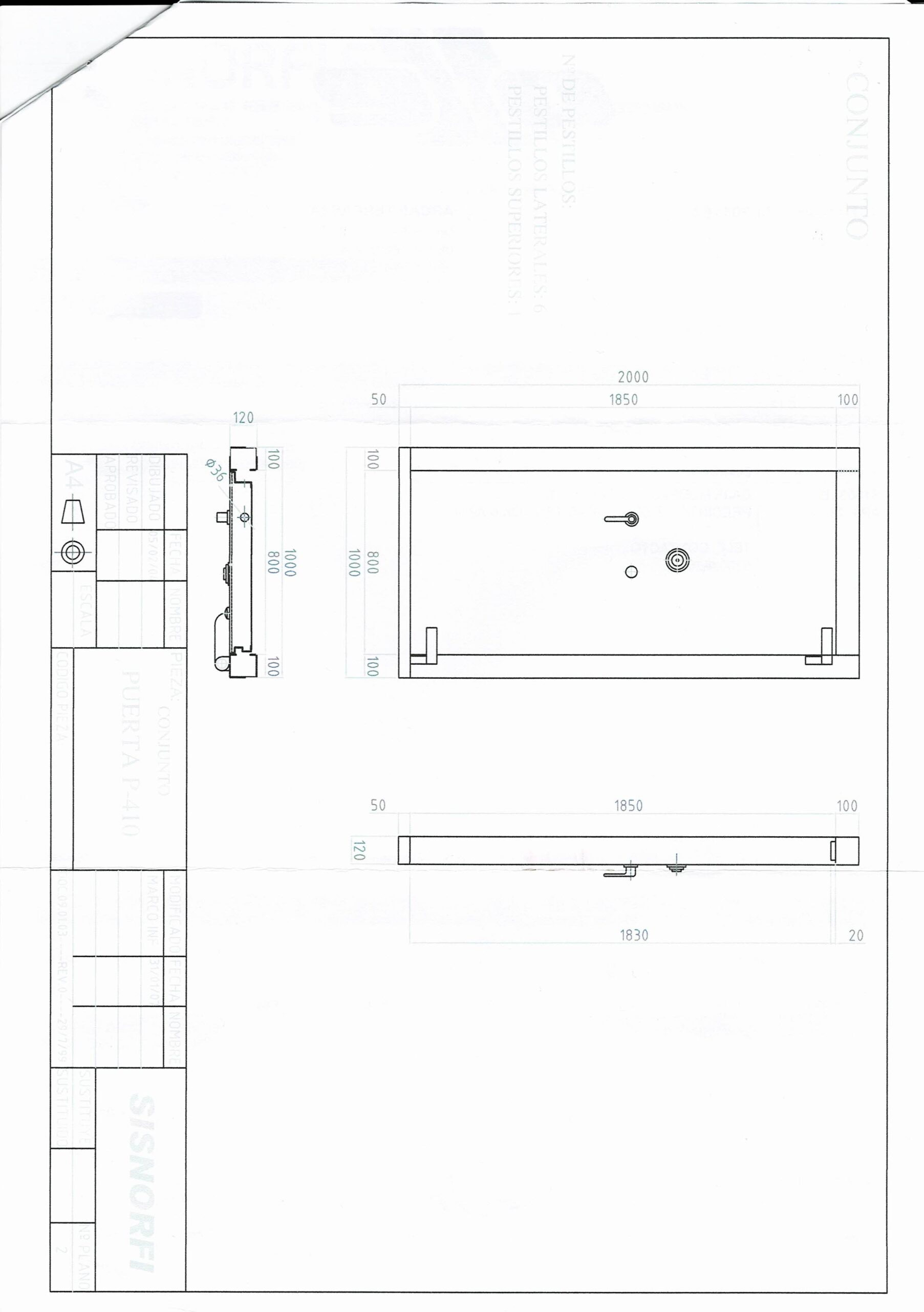
PUERTA ACORAZADA SISNORFI PA-410
Puerta acorazada Sisnorfi PA-410. Espesor total de 10 cm (marco de 12 cm) de los cuales 6 cm son blindaje, compuesta de chapas de acero y hormigon.
Puerta acorazada Sisnorfi PA-410 para camara acorazada, recintos de seguridad o cualquier habitaculo blindado.
Dimensiones
Marco Alto 200 x Ancho 100 x Fondo 12 cm.
Puerta Alto 185 x Ancho 80
Peso 335kg.
Cerradura de llave y combinación electronica Pulse.
Otros tipos de cierre consultar.
Caracteristicas
-Está construído con un perfil laminado UPN, todo el marco en su entorno lleva un conjunto de láminas soldadas para mejor fijación al muro de la cámara.
-Puerta de un espesor total de 11.3 cm. (marco de 12 cm) de los cuales 6 cm de blindaje que están compuestos por chapas de acero de 3 mm de espesor, que alberga en su interior un blindaje especial (BV-IV) compuesto por chapas de acero con pliegues especiales y hormigón. A excepción de la chapa exterior que es de 5 mm y de una chapa de acero al manganeso que protege los mecanismos interiores.
-Número variable de pestillos cilíndricos (según el tamaño de la puerta), la puerta gira en torno a unas bisagras dimensionadas en cada caso para el peso y permitiendo un giro de 180 grados.
-Dos capas de pintura de poliuretano, una primera antioxidante y otra de acabado en color beige. Bajo pedido especial, el cliente podrá determinar otro color y dimensiones.
-Los cierres se componen de cerradura de llave y cerradura numerica mecanica o electronica, tambien se puede suministrar con cerraduras electronicas con retardos y bloqueos o otros (consultar)
*Transporte incluido a planta baja en peninsula, con camion con plataforma, minimo hasta puerta o primer impedimento fisico. Otros lugares consultar.
Las imagenes mostradas pueden variar, dependiendo del color, manetas, etc etc.
Información adicional
| Valoración de seguridad (del 1 al 10) | Nuestra valoración 7 de 10 (alta seguridad) |
|---|---|
| ean13 | 0 |
Solo los usuarios registrados que hayan comprado este producto pueden hacer una valoración.




Valoraciones
No hay valoraciones aún.